Описание проекта

Дом складывается из нескольких простых объёмов, объединённых прозрачной галереей. Она работает как лёгкий переход между частями дома и одновременно стирает границы внутреннего и внешнего.

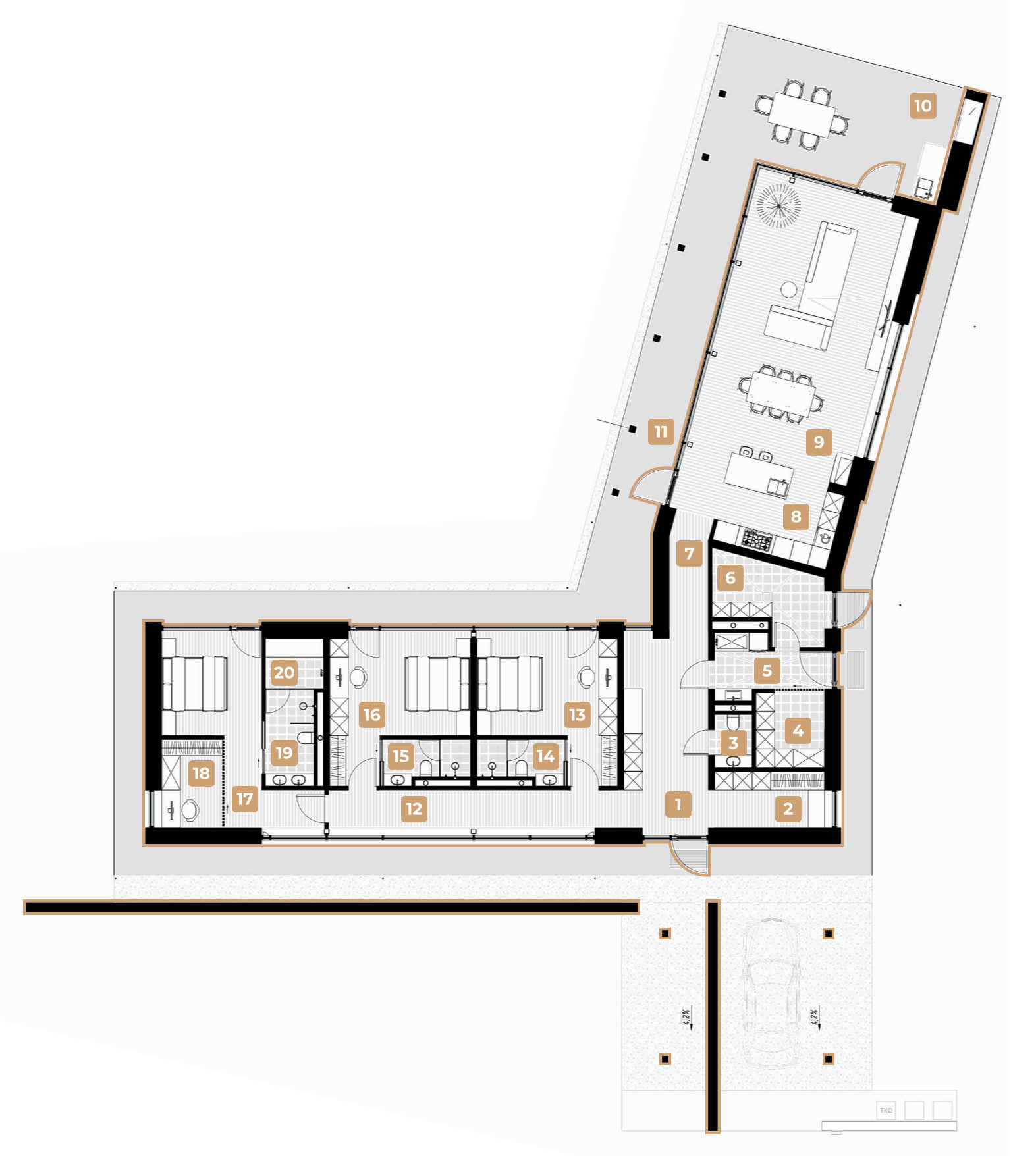
Планировочная структура ясная и функциональная. Общее пространство представлено объединенными зонами кухни, гостиной и столовой, которые имеют панорамный вид из окон на 180 градусов. Здесь сосредоточена вся динамика повседневной жизни: общение, встречи, совместные ужины.

Приватный блок — это анфилада спален, каждая со своим санузлом. Такое решение обеспечивает личное пространство для каждого, сохраняя при этом связь с общим ритмом дома. Все спальни ориентированы во внутренний двор, где открывается спокойный и камерный вид — место, где можно замедлиться и отдохнуть.

Дом одновременно минималистичный и тёплый. В нём нет лишнего — только свет, воздух и простые линии, которые создают гармонию с природой и дарят ощущение лёгкости.

  • FJORD A1

План 1-го этажа

План 1-го этажа
Экспликация плана


Понравился проект?

Поделитесь ссылкой:

Наши проекты

Возможно вам будут интересны другие направления и проекты нашей студии:

Напишите нам

Мы ответим на любые интересующие вас вопросы